About 147 Nicole Lane
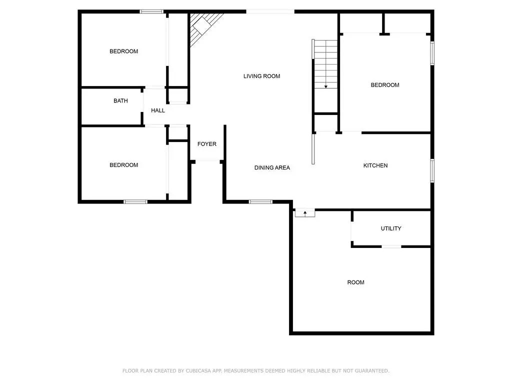
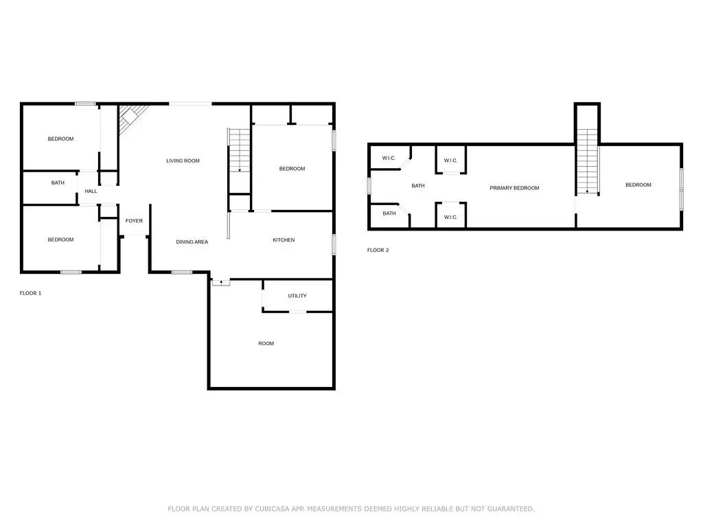
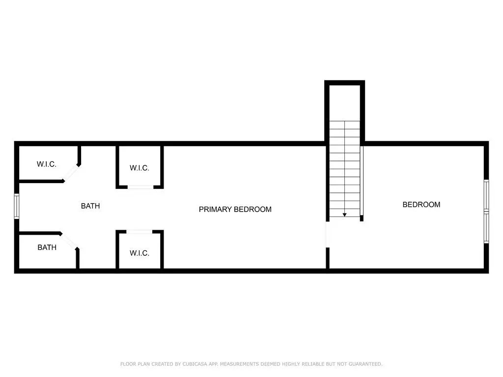
Welcome to this beautiful 4-bedroom, 2-bathroom home located in the desirable subdivision! Step inside to find stunning wood and tile flooring and a vaulted entry ceiling that creates an open, inviting feel. The spacious kitchen provides plenty of counter space and cabinetry, making meal prep easy and enjoyable. The large living area and separate dining room offer the perfect setup for entertaining guests or relaxing after a long day. Outside, unwind on the back deck, gather around the firepit, and enjoy the privacy of your fenced backyard. Solar panels add energy efficiency and long-term savings. Conveniently located near Eglin AFB, Duke Field, Hurlburt Field, shopping, hospitals, and more; this home truly has it all. Schedule your private showing today!This property currently has tenants in place, making it a great investment opportunity for anyone looking to build or expand their rental portfolio. If purchased as a primary residence, the tenants will vacate prior to closing.
Features of 147 Nicole Lane
| MLS® # | 988535 |
|---|---|
| Price | $299,999 |
| Bedrooms | 4 |
| Bathrooms | 2.00 |
| Full Baths | 2 |
| Square Footage | 1,895 |
| Year Built | 1996 |
| Type | Residential |
| Sub-Type | Detached Single Family |
| Style | Traditional |
| Status | Active |
Community Information
| Address | 147 Nicole Lane |
|---|---|
| Area | Crestview Area |
| Subdivision | PARK PLACE 5 |
| City | Crestview |
| County | Okaloosa |
| State | FL |
| Zip Code | 32539 |
Amenities
| Utilities | Public Sewer, Public Water |
|---|---|
| Parking Spaces | 2 |
| Parking | Garage Attached |
| # of Garages | 2 |
| Is Waterfront | No |
| Has Pool | No |
Interior
| Interior Features | Floor Laminate, Floor Tile, Pull Down Stairs, Washer/Dryer Hookup |
|---|---|
| Heating | Heat Cntrl Electric |
| Cooling | AC - Central Elect, Ceiling Fans |
| Has Basement | No |
| Fireplace | No |
| # of Stories | 2 |
Exterior
| Exterior | Brick, Siding Vinyl, Trim Vinyl |
|---|---|
| Exterior Features | Fenced Back Yard, Sprinkler System, Yard Building |
| Lot Description | Cleared |
| Windows | Double Pane Windows |
| Foundation | Siding Vinyl |
School Information
| Elementary | Antioch |
|---|---|
| Middle | Shoal River |
| High | Crestview |
Additional Information
| Zoning | Resid Single Family |
|---|---|
| Foreclosure | No |
| Short Sale | No |
| RE / Bank Owned | No |
