About 58a Dune Breeze Lane D-1
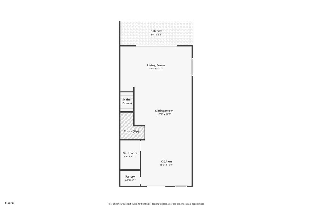
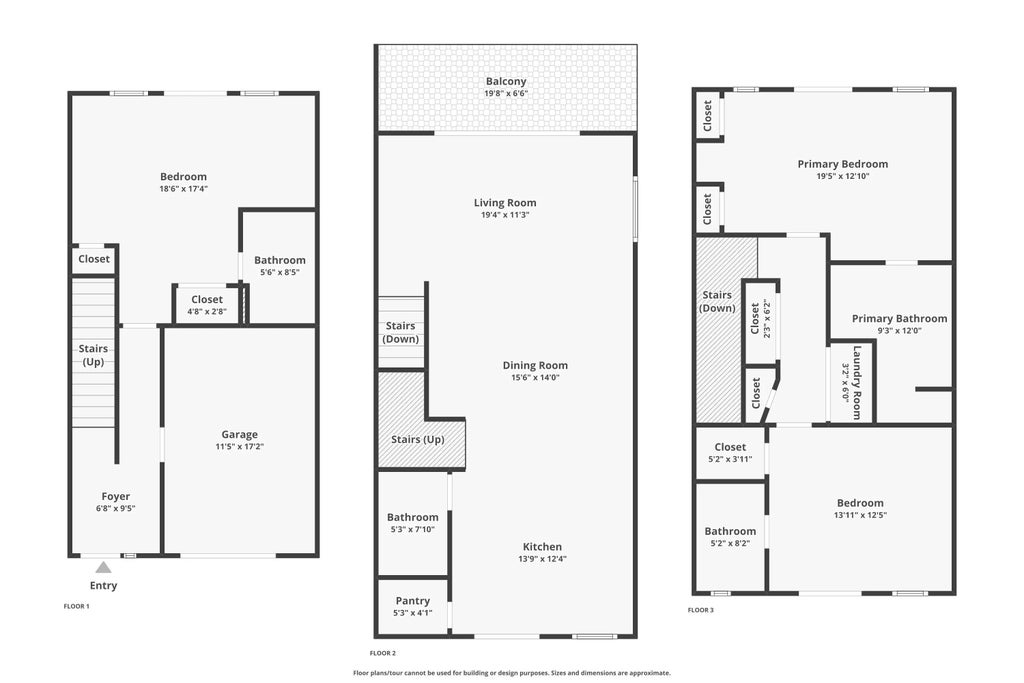
Welcome to your dream coastal retreat -- a stunning 3 bedroom, 4 bathroom, 3 level home with breathtaking Lake and Gulf views from the second and third floors. Whether you're searching for the perfect second home or a high-performing investment property, this move-in ready residence delivers comfort, style, and location in equal measure. Step inside to discover a wide-open living, dining, and kitchen area on the second level, designed for entertaining and drenched in natural light. Slide open the glass doors to your private balcony, where panoramic views of Oyster Lake create the ultimate backdrop for sunset cocktails or morning coffee. Each of the three spacious bedrooms features its own ensuite bathroom offering privacy and luxury for family and guests alike. The home's smart layoutspans three levels, with thoughtful separation between living and sleeping areas. A one-car garage provides storage for beach gear and kayaks because yes, you can launch a kayak right from the lake and paddle your way to the Gulf. Located just a short walk from sugar-white sand beaches, you'll also enjoy easy access to local restaurants, boutique shopping, and vibrant coastal culture. Whether you're looking to relax, entertain, or explore, this home is your gateway to the ultimate beach lifestyle. (Buyer to confirm all measurements)
Features of 58a Dune Breeze Lane D-1
| MLS® # | 987927 |
|---|---|
| Price | $995,000 |
| Bedrooms | 3 |
| Bathrooms | 4.00 |
| Full Baths | 4 |
| Square Footage | 1,960 |
| Year Built | 2002 |
| Type | Residential |
| Sub-Type | Attached Single Unit |
| Style | Townhome |
| Status | Active |
| Waterview | Gulf, Lake |
| Last Taxes | 6022.54 |
| Last Tax Year | 2024 |
Community Information
| Address | 58a Dune Breeze Lane D-1 |
|---|---|
| Area | 30A West |
| Subdivision | DUNE BREEZE VILLAS |
| City | Santa Rosa Beach |
| County | Walton |
| State | FL |
| Zip Code | 32459 |
Amenities
| Amenities | Dock, Pool |
|---|---|
| Utilities | Electric, Public Sewer, Public Water |
| Parking Spaces | 1 |
| Parking | Garage Attached |
| # of Garages | 1 |
| Is Waterfront | No |
| Has Pool | Yes |
| Pool | Community |
Interior
| Interior Features | Breakfast Bar, Floor Tile, Floor WW Carpet, Furnished - All, Lighting Recessed, Skylight(s), Split Bedroom, Washer/Dryer Hookup, Window Treatment All, Woodwork Painted |
|---|---|
| Appliances | Auto Garage Door Opn, Dishwasher, Disposal, Dryer, Microwave, Refrigerator, Stove/Oven Electric, Washer |
| Heating | Heat Cntrl Electric |
| Cooling | AC - Central Elect, Ceiling Fans |
| Has Basement | No |
| Fireplace | No |
| # of Stories | 3 |
Exterior
| Exterior | Frame, Roof Metal, Siding CmntFbrHrdBrd |
|---|---|
| Exterior Features | Balcony, Hurricane Shutters, Porch |
| Lot Description | Covenants, Easements, Interior, Level, Within 1/2 Mile to Water |
| Roof | Roof Metal |
| Construction | Frame |
School Information
| Elementary | Van R Butler |
|---|---|
| Middle | Emerald Coast |
| High | South Walton |
Additional Information
| Days on Website | 4 |
|---|---|
| Zoning | Deed Restrictions |
| Foreclosure | No |
| Short Sale | No |
| RE / Bank Owned | No |
| HOA Fees | 725.00 |
| HOA Fees Freq. | Quarterly |
