About 5002 S Sandestin Boulevard 6921/6923
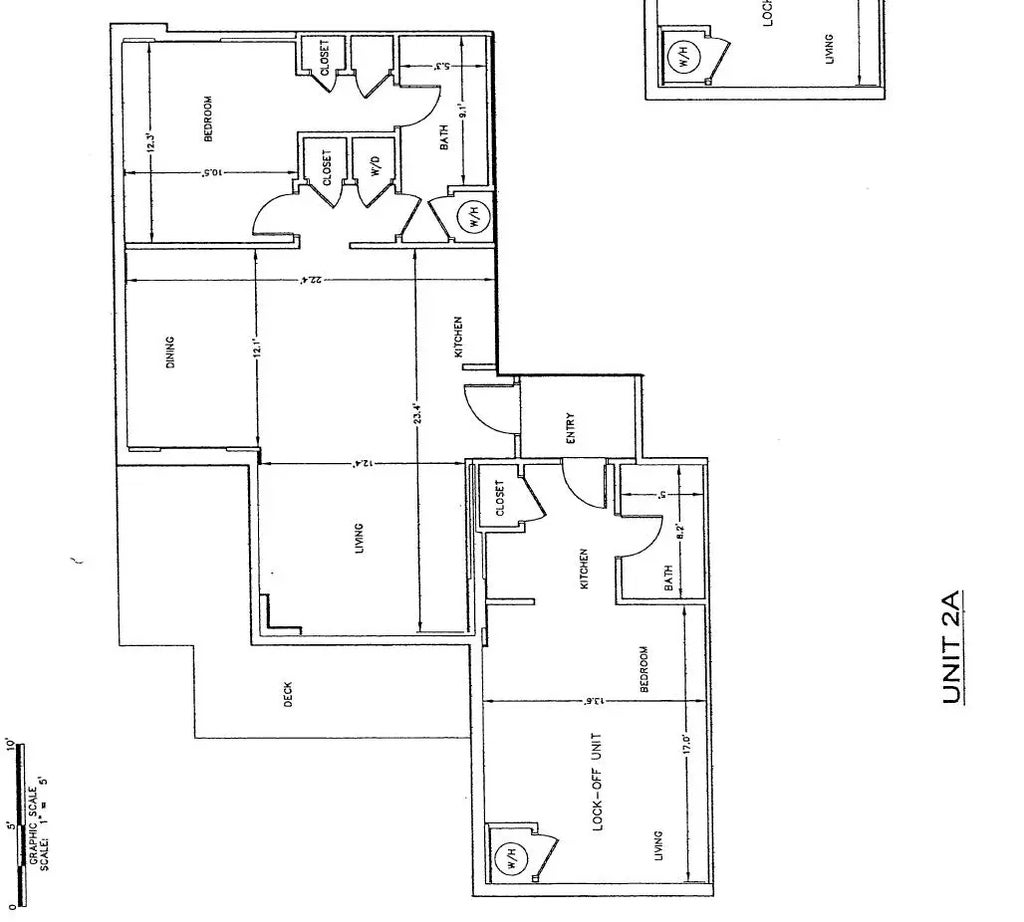
Updated cabinets and NEW Wood-Like flooring throughout. Experience breathtaking beach-to-bay vistas from this 9th-floor, northeast corner condo in Luau II. Featuring a wrap-around covered balcony, this unit offers stunning panoramic views. With a versatile lock-off floor plan, it can function as a studio, a 1-bedroom, or a spacious 2-bedroom condo, providing flexible living and rental options. Conveniently located across the street from the Sandestin beach access and beachfront restaurant. Luau offers an oasis getaway with a seasonally heated pool, relaxing waterfall, hot tub, grilling area and fitness center. In addition, owners can take advantage of the sundeck on the top floor with panoramic views from the gulf to the bay.As an introduction to the Sandestin lifestyle, we invite our new owners to explore amenities that make Sandestin special. The listing brokerage and seller(s) are presenting the buyer(s) of this property with (2) 90-minute rounds of Tennis court time, a golf foursome at one of our three championship courses, and a round of golf for up to four (4) players at the unrivaled Burnt Pine Golf Club. Sandestin Golf and Beach Resort features more than seven miles of beaches and pristine bay front, four championship golf courses, 15 world-class tennis courts, a 226-slip marina, a fitness center, spa and celebrity chef dining. Shop, dine and play at the charming pedestrian village, The Village of Baytowne Wharf and more. Inside the gates of the resort, residents enjoy a balanced lifestyle of high-class living, spanning the 2,400 acres from the beach to the bay. Everything within the gates of the resort is accessible by golf cart or bicycle. The entire resort is interconnected by miles of pedestrian, bike and golf cart paths that weave through groves of live oaks, meandering past natural lagoons, fountains, man-made lakes, and meticulously landscaped fairways.
Features of 5002 S Sandestin Boulevard 6921/6923
| MLS® # | 951783 |
|---|---|
| Price | $572,900 |
| Bedrooms | 2 |
| Bathrooms | 2.00 |
| Full Baths | 2 |
| Square Footage | 1,204 |
| Year Built | 2006 |
| Type | Residential |
| Sub-Type | Condominium |
| Style | N/A |
| Status | Active |
| Waterview | Bay, Gulf |
| Last Taxes | 4040.05 |
| Last Tax Year | 2024 |
Community Information
| Address | 5002 S Sandestin Boulevard 6921/6923 |
|---|---|
| Area | Miramar/Sandestin Resort |
| Subdivision | LUAU II |
| City | Miramar Beach |
| County | Walton |
| State | FL |
| Zip Code | 32550 |
Amenities
| Amenities | BBQ Pit/Grill, Beach, Dumpster, Elevators, Exercise Room, Fishing, Gated Community, Golf, Handicap Provisions, Laundry, Marina, Pavillion/Gazebo, Pets Allowed, Pickle Ball, Picnic Area, Pool, Separate Storage, Short Term Rental - Allowed, Tennis, TV Cable, Waterfront |
|---|---|
| Utilities | Electric, Public Sewer, Public Water, TV Cable |
| Parking | Covered, Garage, Garage Attached |
| Is Waterfront | No |
| Has Pool | Yes |
| Pool | Community |
Interior
| Interior Features | Breakfast Bar, Floor Tile, Floor Vinyl, Furnished - All, Lock Out, Owner's Closet, Washer/Dryer Hookup, Window Treatment All |
|---|---|
| Appliances | Dishwasher, Dryer, Microwave, Refrigerator, Refrigerator W/IceMk, Smoke Detector, Smooth Stovetop Rnge, Stove/Oven Electric, Washer |
| Cooling | AC - 2 or More, AC - Central Elect, Ceiling Fans, Water Heater - Two + |
| Has Basement | No |
| Fireplace | No |
Exterior
| Exterior | Stucco |
|---|---|
| Exterior Features | Balcony |
School Information
| Elementary | Van R Butler |
|---|---|
| Middle | Emerald Coast |
| High | South Walton |
Additional Information
| Days on Website | 518 |
|---|---|
| Foreclosure | No |
| Short Sale | No |
| RE / Bank Owned | No |
| HOA Fees | 1286.86 |
| HOA Fees Freq. | Monthly |
