About 511 Government Avenue 200
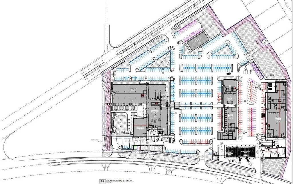
Introducing Okaloosa Gas District Administration Building. This state of the art new Class 'A' Office building will revitalize Valparaiso and bring hundreds of jobs to the area. Spanning over 13 acres, the campus includes this one of a kind office environment but also includes updated facilities for Okaloosa Gas for operations, HR and training. The Administration Building has been designed with all the latest technology, safety and comfort in mind for not only its staff but for other businesses alike. The location of this property near the East Gate of Eglin AFB gives access to defense contractors looking for professional working environment. Common elements of the property include a ground floor dining facility open to the public, beautiful green space as well as a large community room that will allow up to 300 people to gather for events. Tenant spaces are available for prelease immediately as we plan to deliver the building by 4th quarter 2025.
Features of 511 Government Avenue 200
| MLS® # | 943035 |
|---|---|
| Price | $30 |
| Square Footage | 123,500 |
| Acres | 13.47 |
| Year Built | 2025 |
| Type | Commercial Lease |
| Sub-Type | Office |
| Status | Active |
Community Information
| Address | 511 Government Avenue 200 |
|---|---|
| Area | 13 - Niceville |
| City | Valparaiso |
| County | Okaloosa |
| State | FL |
| Zip Code | 32580 |
Additional Information
| Days on Website | 690 |
|---|
